Rif: SdT104
FONTANIVA
PADOVA
A Fontaniva (PD) in Z.I. sud si propone in locazione un luminoso Capannone di 1.700 mq ad uso produttivo/deposito avente le seguenti caratteristiche:
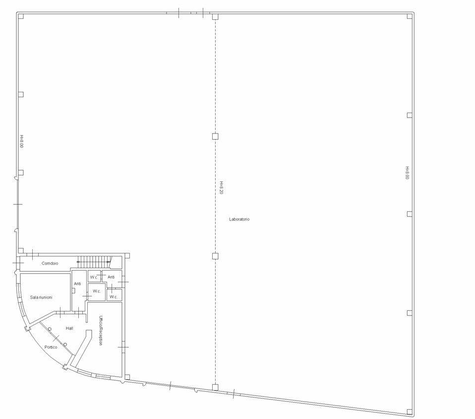
• Laboratorio di 1.600 mq con altezza di 8.0 metri al trave di pianta regolare con bagni
• Predisposizione per il carroponte
• Pavimento al quarzo
• Palazzina Uffici di 150 mq
• Nr. 2 portoni luce 4 x H4 metri
• Impianto elettrico e illuminazione
• Parzialmente riscaldato (800 mq)
• Anello Antincendio
• Allacci alle utenze
L'immobile è in condizioni di pari al nuovo.
Per info: info@studiosdt.net - 04241620371 - 3474268519 – Rif. SdT104.
Per Privacy e su richiesta espressa della Proprietà l'indirizzo riportato sulla Mappa non corrisponde all'esatta ubicazione dell'immobile.
• Laboratorio di 1.600 mq con altezza di 8.0 metri al trave di pianta regolare con bagni
• Predisposizione per il carroponte
• Pavimento al quarzo
• Palazzina Uffici di 150 mq
• Nr. 2 portoni luce 4 x H4 metri
• Impianto elettrico e illuminazione
• Parzialmente riscaldato (800 mq)
• Anello Antincendio
• Allacci alle utenze
L'immobile è in condizioni di pari al nuovo.
Per info: info@studiosdt.net - 04241620371 - 3474268519 – Rif. SdT104.
Per Privacy e su richiesta espressa della Proprietà l'indirizzo riportato sulla Mappa non corrisponde all'esatta ubicazione dell'immobile.
Consistenze
| Descrizione | Superficie | Sup. comm. |
|---|---|---|
| Principali | ||
| Capannone - piano terra | 1.600 Mq | 1.600 Mqc |
| Ufficio - piano terra | 150 Mq | 150 Mqc |
| Totale | 1.750 Mqc | |






